「美好门店 东莞站」
GUANZHU 第15期
门店故事
选择一座城市,就是选择一座城市的未来。作为世界知名的制造之都,地处大湾区核心发展地带的东莞,不仅是重要的交通枢纽和外贸口岸,也是世界消费潮流的“风向标”。东莞冠珠旗舰店先于常人嗅到了浪潮气息,选择罗沙区域作为冠珠在大湾区布局的新起点,为东莞这座城市带来了一个新奇有趣的家居零售新体验。
名称:东莞冠珠旗舰店
面积:2000㎡
地点:广东省东莞市莞城区天宝第一空间D座
设计指导:品牌门店设计中心 陈金成
主笔设计:品牌门店设计中心 廖浩宇、区鹏成、熊继箭
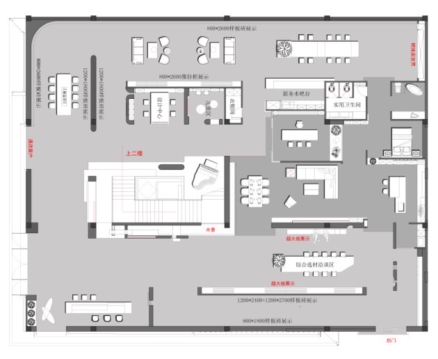
▲门店一层平面布置图
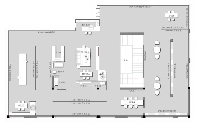
▲门店二层平面布置图
2000㎡大空间展示
380+爆款产品随意搭配
1:1全岩定制空间实景示范
东莞冠珠旗舰店的开业
从选材、设计、加工、铺贴到售后
一站式解决用户
售前、售中、售后面临的家装难题
为东莞市民带来一场沉浸式家居购置新体验
本期“美好门店”,让我们一块走进东莞冠珠旗舰店(下面简称:东莞冠珠),看空间美学如何与现代设计产生碰撞,让家居灵感被焕新触发。【周边网】
用设计·打造冠珠地方新名片
这一次,我们重新思考了用户、空间与设计三者间的关系,用现代设计解构空间美学,以“人间烟火”为叙事场景,营造独特的感官体验。
推门而入走进大厅,无限连纹仿若繁花似锦般的「杏林叠翠」岩板背景墙一眼惊艳,在视觉上触达人们的审美感官,为用户开启一段设计视觉之美,让人仿佛置身于旷野之境,令人心旷神怡。
冠珠岩板“万物皆可覆”的优越性能,给空间设计带来了新颖的美学和质感体验。简约的线条、不规则的几何造型设计感强烈,漫步其中,以小见大,打造缝隙窥探的一步一景既视感,体现了冠珠在空间上的塑造多样性。
无论是变化万千的艺术造型,还是上墙下地,乃至茶几、桌面、橱柜的家居饰面,冠珠岩板产品皆可满足用户多维的设计想法。
大面积选材区域带来开阔的空间感受,搭配多规格、多花式、多种类的产品排列,进退自如的材料区布局,行走间便可启发无限装修灵感。
▲380+爆款产品随心搭
与时俱进,用年轻化的产品,诠释符合当下时代的美学追求。目前,东莞冠珠已在展厅上新380+爆款产品,无论您想要什么风格的家装设计,在这儿都能找到与之轻松搭配的装修饰材。
▲冠珠「华珍」系列,现代大宅新选择
▲冠珠「华脉」系列,带来生活诗意新表达
▲冠珠3200×1600系列产品,大规格让空间更大气
▲冠珠「木纹砖」系列,打造自然质感空间
▲冠珠「彩妆」系列,以国色引领国潮风尚
以体验·开启国人家居新生活
一切以用户价值为核心,从服务、设计到施工落地,东莞冠珠为用户提供一条龙的购置服务。
挑选完产品后想知道铺贴效果如何?明珠家世界“快绘”系统为您打造“所见即所得”购置体验,挑选好您心仪的产品,现场即可生成设计案例图,随时刷新您的装修灵感。
▲东莞冠珠-明珠家世界“快绘”系统
从灯饰的挑选到家具的选择,从软装搭配到整个空间的风格定调......东莞冠珠1:1全岩定制空间应用展示,让您对新家装修不再是天马行空的设想。
没有过多的繁琐,用产品的肌理和纹路来演绎空间的语言,让每个用户真实看到选砖后的铺贴效果,进而放心选择喜爱的家装风格。
▲全岩定制空间-客厅展示
▲全岩定制空间-客厅展示
▲全岩定制空间-书房/儿童房展示
▲全岩定制空间-卫生间展示
▲全岩定制空间-卧室展示
▲全岩定制空间-西厨展示
▲全岩定制空间-茶室展示
当下时代,人们对家居品质生活提出了更高的要求,传统的门店早已无法满足用户对真实场景的体验和互动需求,本期美好门店——东莞冠珠的全新落成,为终端升级转型提供了教科书般的示范。建大店、建新店,打造产品美学空间,触达用户购置价值体验,影响用户最终决策,这是品牌在当地实现市场突围的重要一步。

























